Beste forum leden
Voor mijn vernieuwde doucheruimte probeer ik verdeling vloer(tegels) te maken,
kom er niet echt uit wat nou het beste is.
Vloertegels 60x60 cm
(Wandtegels 80x40 cm)
Bijgevoegd 3 tekeningen
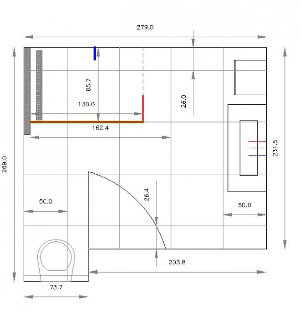
Links boven op tekening gearceerd staat muurtje voor nis van 7 cm dik , met daarnaast de douchegoot.
Er komt een glazen wand op van ong. 130cm lang met klapdeurtje.
Deze wil ik op de speciale strip zetten die hier voor in de handel is.
Wat is nou een goede verdeling van de tegels , het liefst zou ik een breedte hebben van 90-95cm maar dan moet ik tegels doorsnijden , ik weet niet of dit optisch mooi is.
Verder nog een halfsteens verband , nou komt de douche strip /glaswand wel op de voeg maar wordt breedte ong. 86cm
(26+60cm)
en nog een andere optie waarbij ik met halve tegel begin
Of misschien een geheel andere verdeling....
Bij voorbaat dank.
Voor mijn vernieuwde doucheruimte probeer ik verdeling vloer(tegels) te maken,
kom er niet echt uit wat nou het beste is.
Vloertegels 60x60 cm
(Wandtegels 80x40 cm)
Bijgevoegd 3 tekeningen
Links boven op tekening gearceerd staat muurtje voor nis van 7 cm dik , met daarnaast de douchegoot.
Er komt een glazen wand op van ong. 130cm lang met klapdeurtje.
Deze wil ik op de speciale strip zetten die hier voor in de handel is.
Wat is nou een goede verdeling van de tegels , het liefst zou ik een breedte hebben van 90-95cm maar dan moet ik tegels doorsnijden , ik weet niet of dit optisch mooi is.
Verder nog een halfsteens verband , nou komt de douche strip /glaswand wel op de voeg maar wordt breedte ong. 86cm
(26+60cm)
en nog een andere optie waarbij ik met halve tegel begin
Of misschien een geheel andere verdeling....
Bij voorbaat dank.